안녕하세요. Hoo^2입니다. 주택에 대한 내용으로 많은 리뷰를 올려드려야 하는데요, 어떻게 정리해야 할지 잘 모겠었어 되는대로 정리해봅니다. 벌써 주택생활을 한 지 4년이 되었네요. 처음 땅을 구입하고 집을 설계했을 때와 이렇게 많은 시간이 지났갔다는 게 믿기지는 않네요..

처음으로 집을 지어 봅니다. 처음으로 땅을 사봅니다. 처음으로 집설계에 참여해봅니다.
처음 시작하는 집짓기에 대해서 많은 정보들이 필요하게 됩니다. 그러기 위해서는 미리 경험하신 분들에 대한 이야기를 들어 보는 것이 가장 좋습니다. 물론 시공사에서 일반적인 내용을 들을 수 있지만, 시공사의 말만 믿고 집을 짓는 것은 무리가 있을 듯합니다. 그것은 다른 누군가가 설계한 디자인이나 구조로 집을 짓는 것으로 내 집에 대한 호감이 많이 떨어집니다.

전원주택이 아닌 일반 주택으로 요즘은 대도시의 귀퉁이에 단지를 조성하여 많이 분양을 하고 있습니다. 저도 마찬가지로 분양을 받아 땅을 구매하였습니다. 땅은 제 기억에 50%까지 대출이 가능했던 것으로 기억이 납니다. 그래도 신용으로 대출을 받아서 땅을 구매한 기억이 납니다.
신용 + 땅 50%로 하니 땅은 충분히 구매가 가능했었던 것 같습니다.
땅은 남향으로 바라보는 땅이 가장 좋고, 앞에 도로가 있어 앞집과의 거리가 조금 있는 것이 햇볕도 잘 들고 하는 것 같네요.. 아니면, 뒤쪽으로 집을 붙여서 짓거나 하는 것이 좋을 듯합니다. 뭐니 해도 주택은 채광이 좋아야 할 것 같습니다.
저의는 채광을 많이 고려하지 못했네요.. ㅜㅜ
![]() 주택 짓기 |
![]() 주택 짓기 |
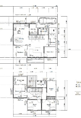
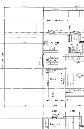
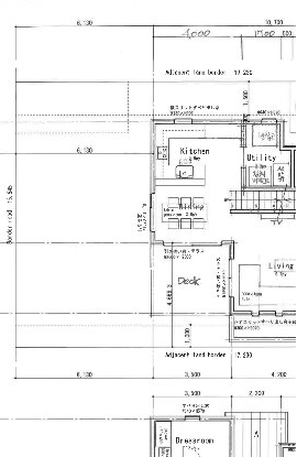
처음 집을 설계하려면 많이 당황스러울 수 있습니다. 내가 인터넷이나 Youtube 등을 많이 보고 했어도 설계자와 같이 맏딱드리면 뭘 어떻게 해야 할지 어지럽기 마련입니다.
제가 설계사와 같이 처음 디자인할 때에는 일단 평수를 정하고, 방 개수를 일단 정했던 것 같습니다. 그러면 설계사께서 간단한 구조로 집을 설계하고 다시 협의가 시작됩니다. 부엌의 위치와 소파의 위치와 크기, 티브이 등 각종 전자 제품의 크기와 위치를 조절합니다. 설계 후 다시 협의를 합니다. 계단의 위치 화장실의 위치 등을 계속 협의를 하게 되니 조급해 할 필요 없이 천천히 진행하시면 됩니다. 가장 많이 도움이 되는 것은 주위의 이웃들과 먼저 이야기하거나 방문하는 것이 제일 좋습니다.
추가로 콘센트 위치와 전등 스위치 위치 등 고려해야 사항들이 많지만, 설계하시는 분이 계속 체크를 해주니, 너무 많은 걱정을 하실 필요는 없습니다. 하지만 꼼꼼하게 챙겨야 뒤에 후회를 하지 않습니다.
본인의 생활 패턴도 많이 고려해야 하니 설계 시 꼭 추가하시기 바랍니다. 보통 쉽게 생각하는 콘센트 위치와 통신포트 위치도 고려해주시고요.
천천히 생각하시고 설계에 참여하셔야 해요.
![]() 주택 짓기 |
![]() 주택 짓기 |
오늘은 여기까지만 포스팅하도록 하겠습니다. 다음은 앞으로 진행되어야 할 선택사항들을 알아보도록 할께요.. 아직 집 주인이 될 분이 선택해야 하는 것들이 무지막지하게 많이 있거든요.. 관심이 있다면 모든 것에 대해서 설계시 관여해야 내가 원하고 바라는 집이 되기 때문에 다음에 추가적으로 알아 보도록 하겠습니다.
주택 외관도 선택이 필요하니 사진 한번 보겠습니다.
![]() |
![]() |
![]() |
![]() |
![]() |
![]() |
![]() |
![]() |
![]() |
| 예초기 - 충전식 예초기 (0) | 2020.09.01 |
|---|---|
| 전동 드릴드라이버-임팩트 드라이버 (1) | 2020.08.23 |
| 열대어 제바오 수류모터 (0) | 2020.08.22 |
| 울타리 주택에 필수 - 주택에 살아보기 (0) | 2020.08.12 |
| 해바라기 샤워기 헤드 고치기 (0) | 2020.08.09 |